NHN700 is a medium duty floor spring with spindle and various options. For installation on internal and external doors up to 1250mm wide with a weight of 200kg max.
Using Cam action, NHN700 offers a range of benefits, such as closing and latch speed adjustments for a perfect closing action.
Back check which is ideal for high traffic doors as it offers resistance when the door is opened with excessive force, preventing damage.
Dual-handed for push or pull side mounting and Double door opening angle of 130°.
Variable closing force EN2-5
- For doors up to 1250mm in width
- 200kg max door weight
- Closing and latch speed adjustment
- Non handed dual action
- Standard supply is without hold open (hold open available as option)
- With a range of door fitting accessories available
- Extended spindles up to 50mm available
- EN Fire Tested
- Back Check
- Standard finishes in SSS or Polished brass
- Guarantee – A free replacement ex-works if any closer proved to be defective by faulty manufacture or defect in materials.
| NHN700 | |||
| Closing force - EN1154:1996+A1:2002/AC:2006 | EN 2/3/4/5 | ||
| Applicable Door (Door Width / Door Weight) |
< 850mm | <70kg | 702 |
| <950mm | <100kg | 703 CE | |
| <1100mm | <150kg | 704 CE | |
| < 1250mm | <200kg | 705 | |
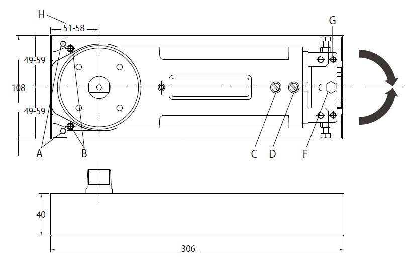
| Body dimensions (mm) | Length | 306 | |
| Width | 108 | ||
| Thickness | 40 | ||
| Arm | Standard | O | |
| Offset arm | O | ||
| O = Option | |||
Introduction



Adjustment
Complete speed control – the closing speed and the latch speed can be controlled via two independent values.

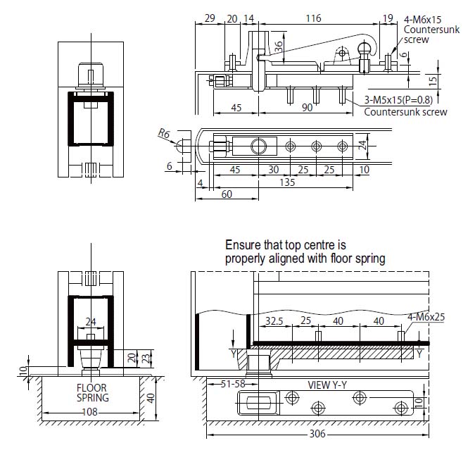
Installation
Fitting to a double action door

Accessories for double action aluminium and wooden doors

Model
| 700 | ||
| Closing force - EN1154:1996+A1:2002/AC:2006 | EN2 to 5 | |
| Applicable Door (Door Width / Door Weight) |
< 850mm | < 70kg | 702 |
| < 950mm | < 105kg | 703 CE | |
| <1100mm | < 150kg | 704 CE | |
| <1250mm | <200kg | 705 | |
| Body dimension (mm) | Length | 306 |
| Height | 108 | |
| Thickness | 40 | |
| Arm | Standard | O |
| Offset arm | O | |
| Cam-action | Y | |
| Angle of Opening | 130° | |
| Closing Speed Adjustable | Y | |
| Latching Speed Adjustable | Y | |
| Hold-Open | Without Hold Open | Y |
| at 90° hold-open | O | |
| at 105° hold-open | O | |
| Back Check | Adjustable at valve | Y |
| Non-Handed | Y | |
| Extended Spindle | +5, +7.5, +10, +15, +20, +25, +30, +40, +45, +50mm | |
| Y = Yes | N = No | O = Option | ||










